 
				
			
		BUILDING PLANS & PERMITS
DRAFTING & DESIGN SERVICES
What we do
		
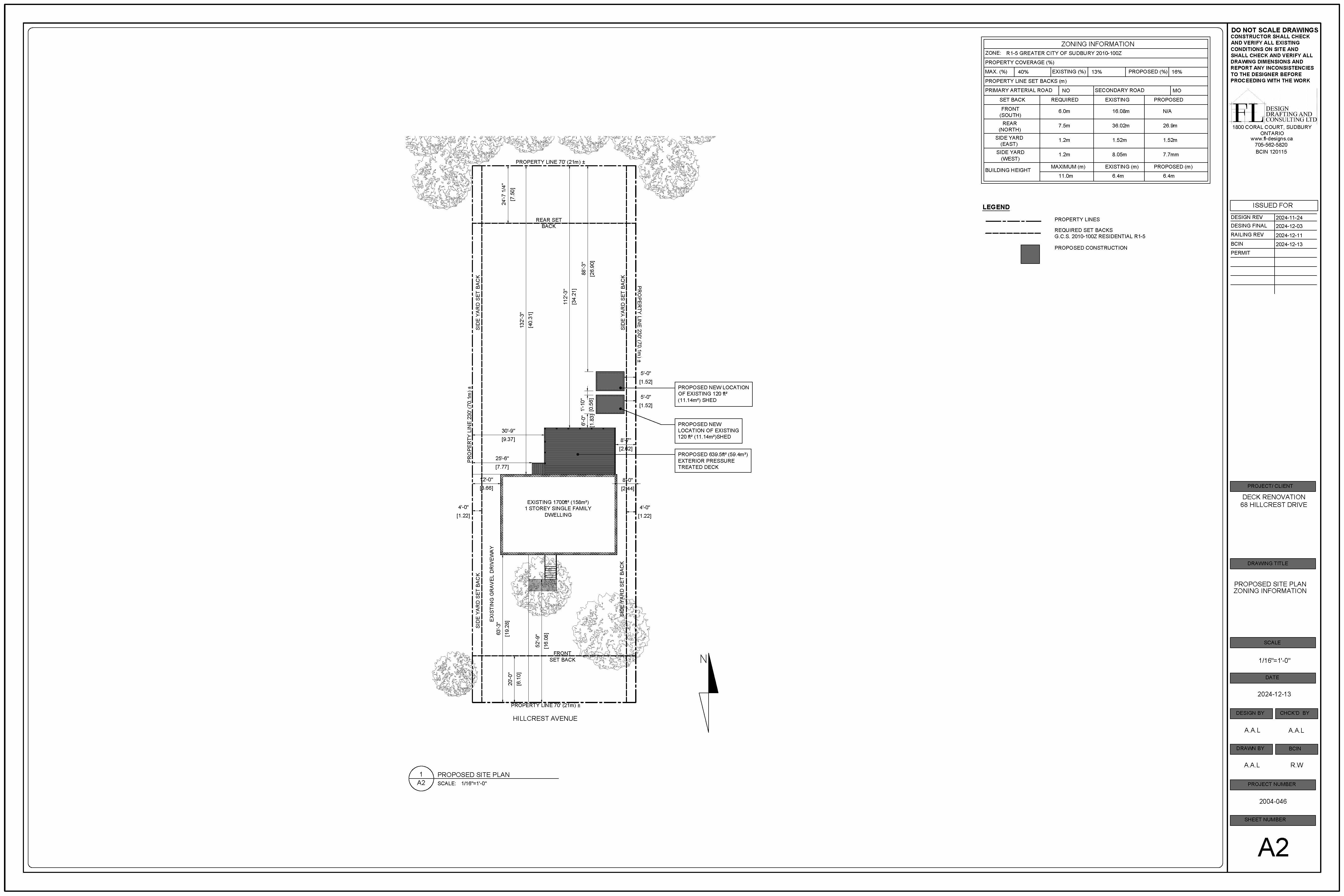
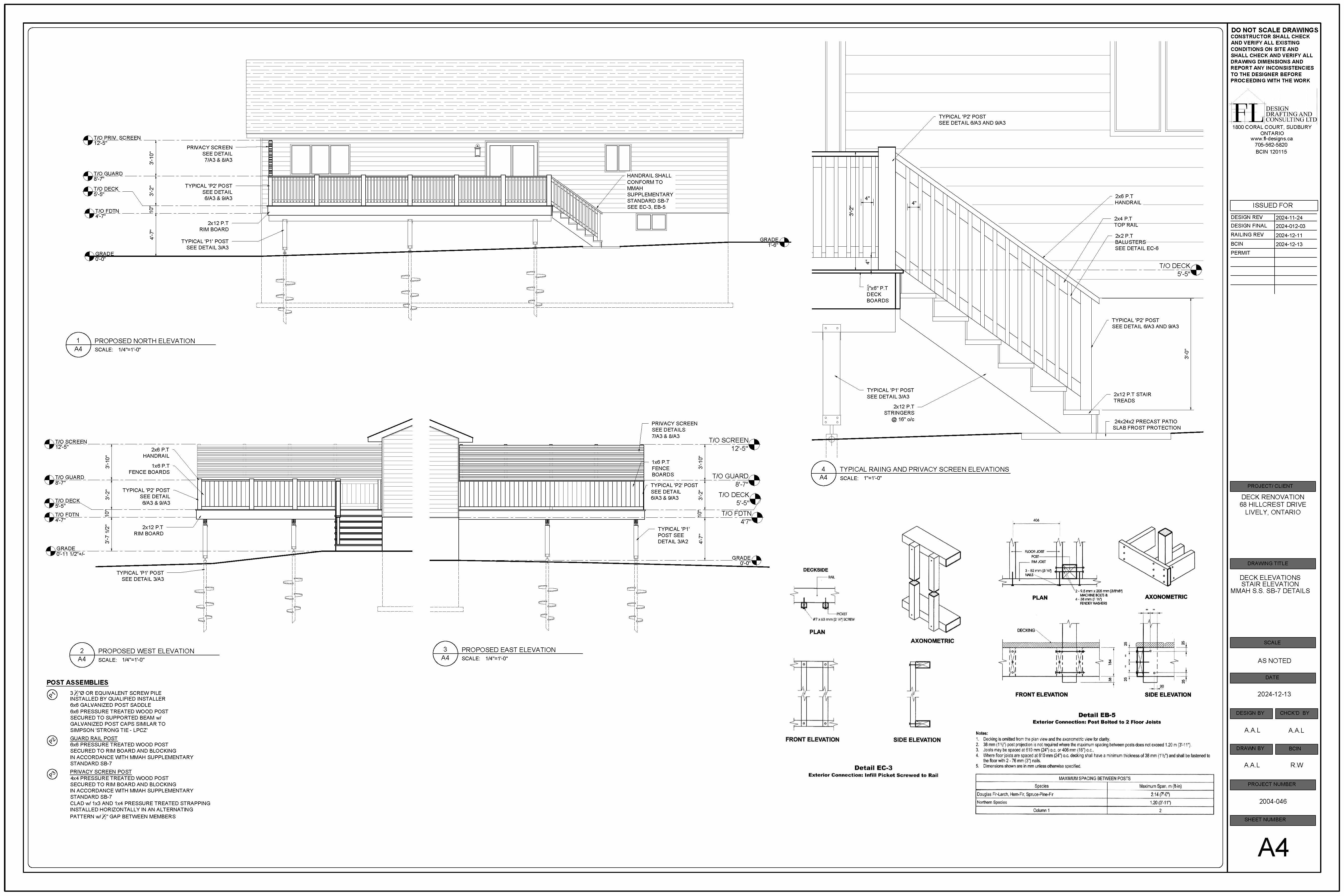
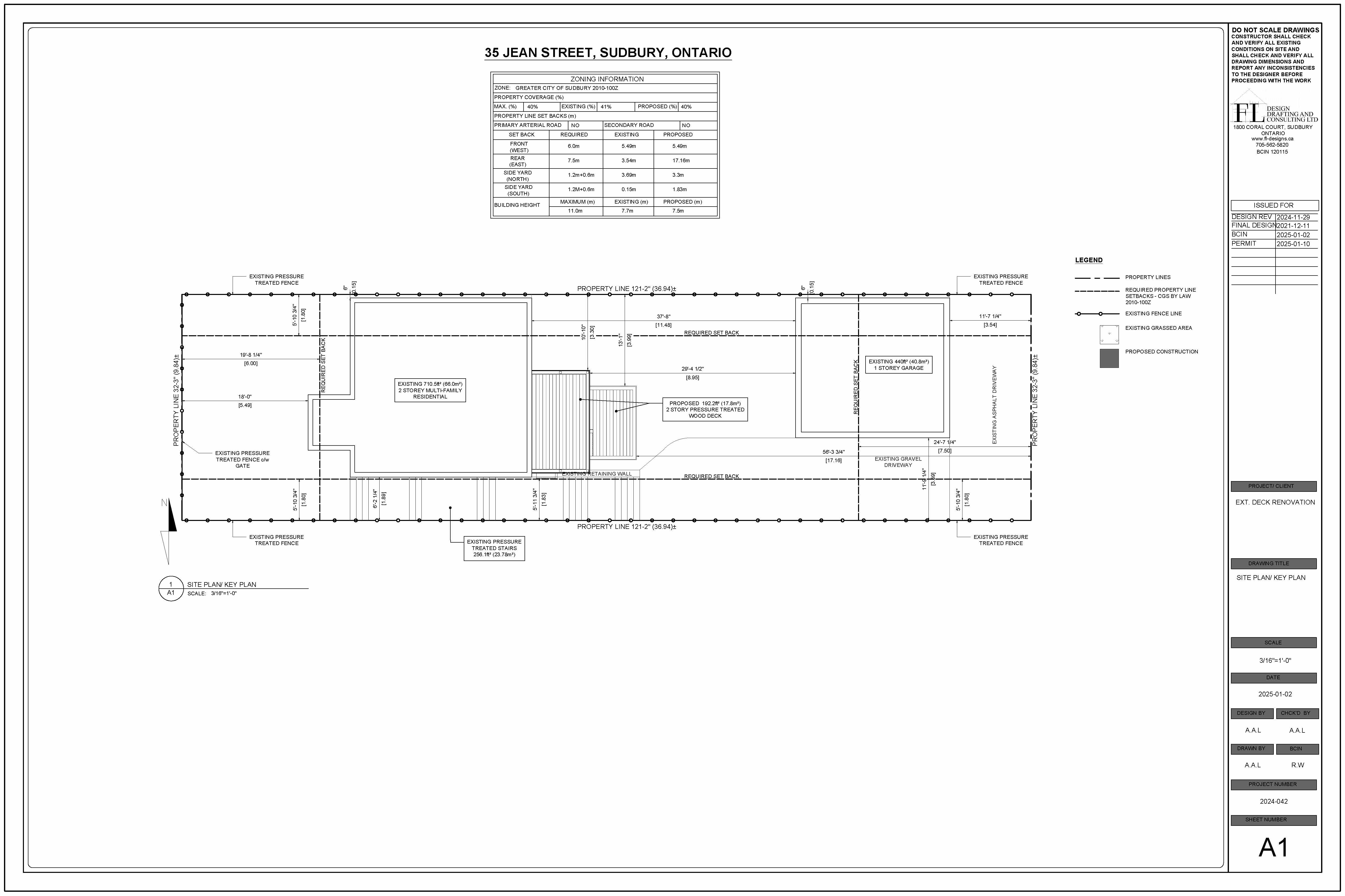
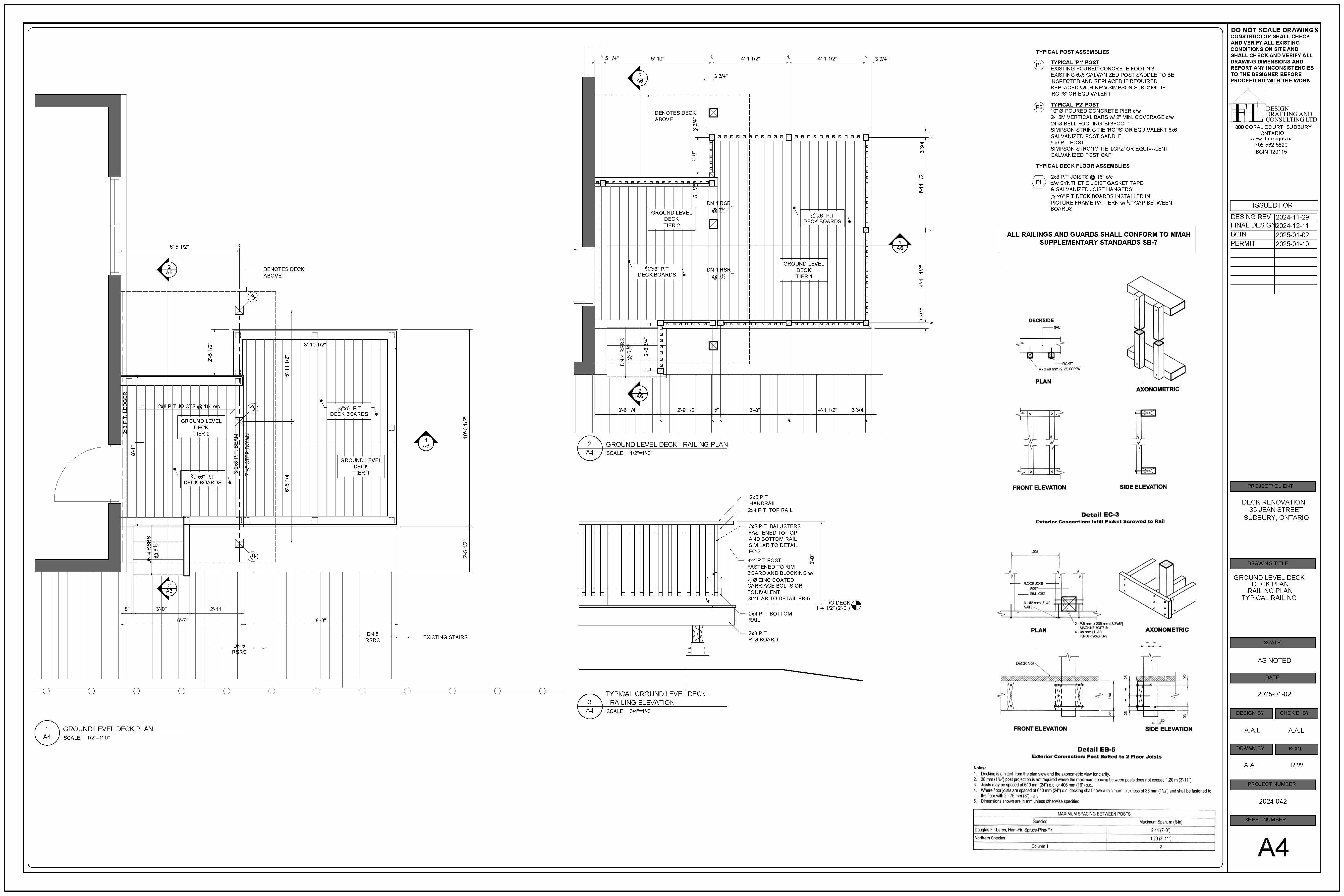
			EXTERIOR DECK DESIGN
- Create custom, functional and visually stunning decks tailored to your outdoor living needs
SECONDARY DWELLING UNITS
- Design innovative and space-efficient accessory dwelling units for various residential needs
- Focus on maximizing functionality and aesthetic appeal
 DRAFTING SERVICES
- Provide accurate and detailed construction drawings for residential projects
- Collaborate with clients, contractors, other professional designers, and permit agencies to ensure seamless execution
- Provide detailed digital drafting services to other professional designers 
- Produce detailed shop drawings for manufacturers of building products and  components using AutoCAD
CONSULTING SERVICES AND EXISTING SITE MEASURES
- Offer AutoCAD drafting solutions to other professional designers
- Assist in navigating zoning requirements and obtaining building permits
how we assist our clients
		
			
our portfolio
		
			Take some time to browse some of our previous projects and learn first hand why people are choosing FL-Drafting and Consulting Ltd for there drafting and design needs
SOME OF OUR RECENT PROJECTS
		
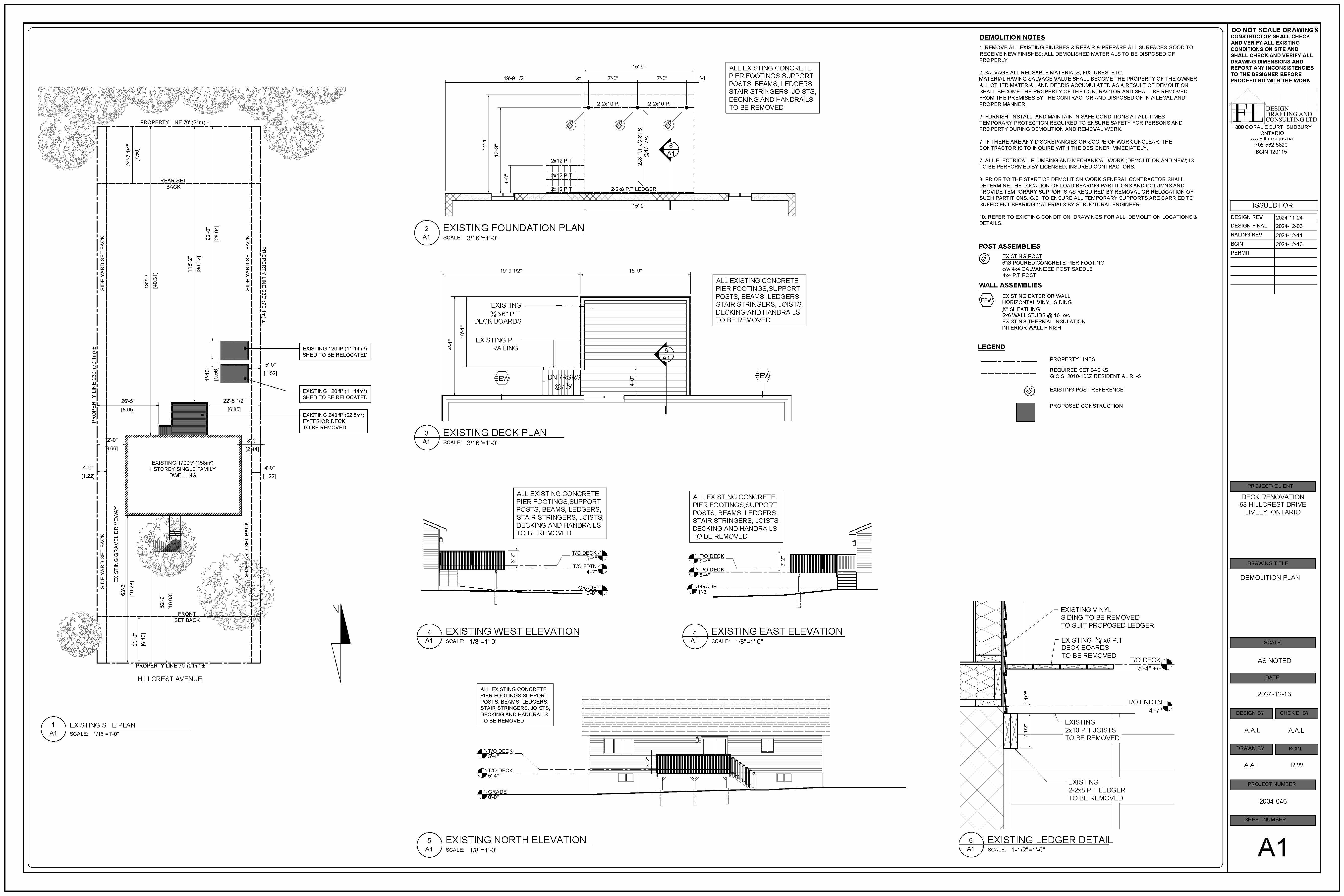
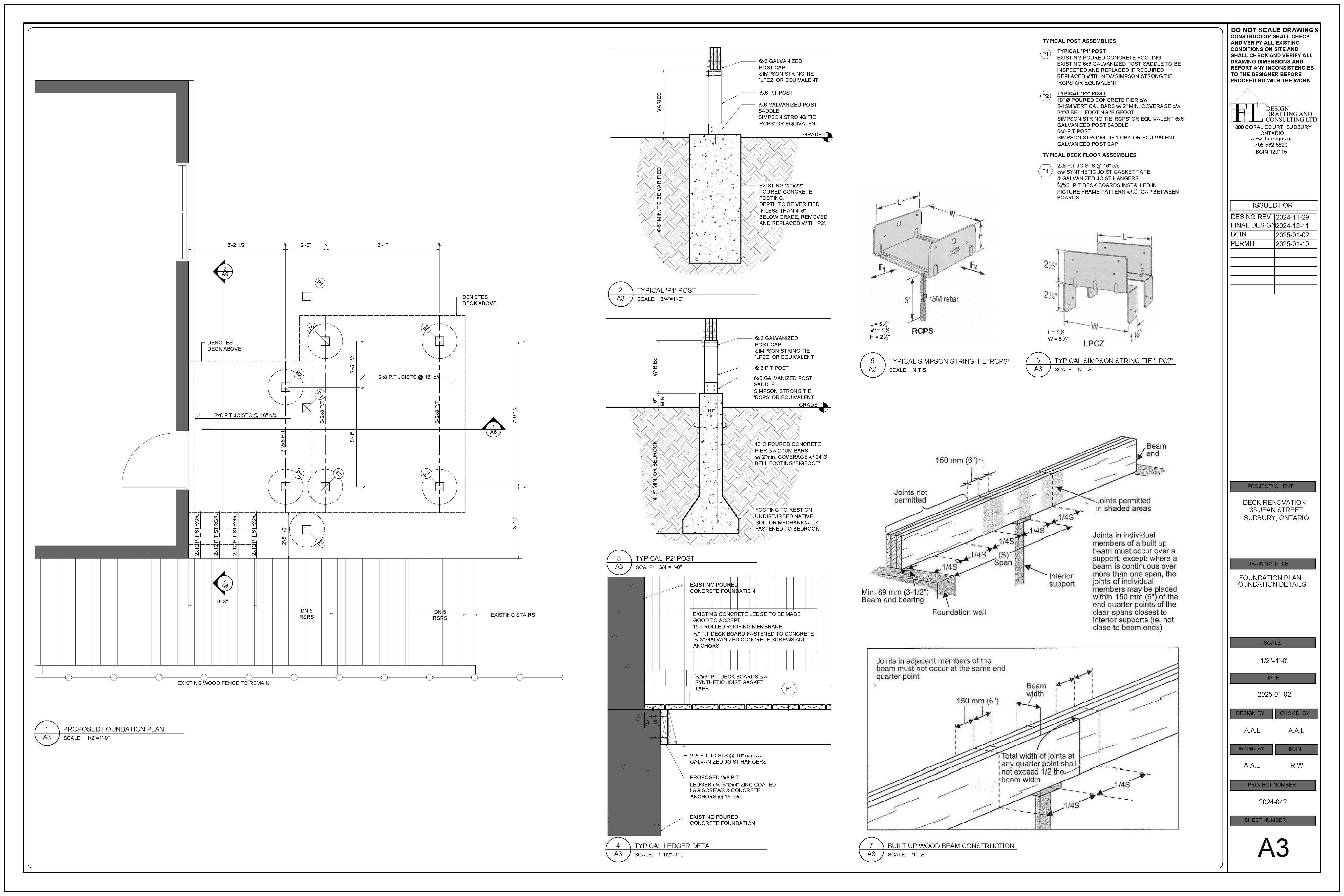
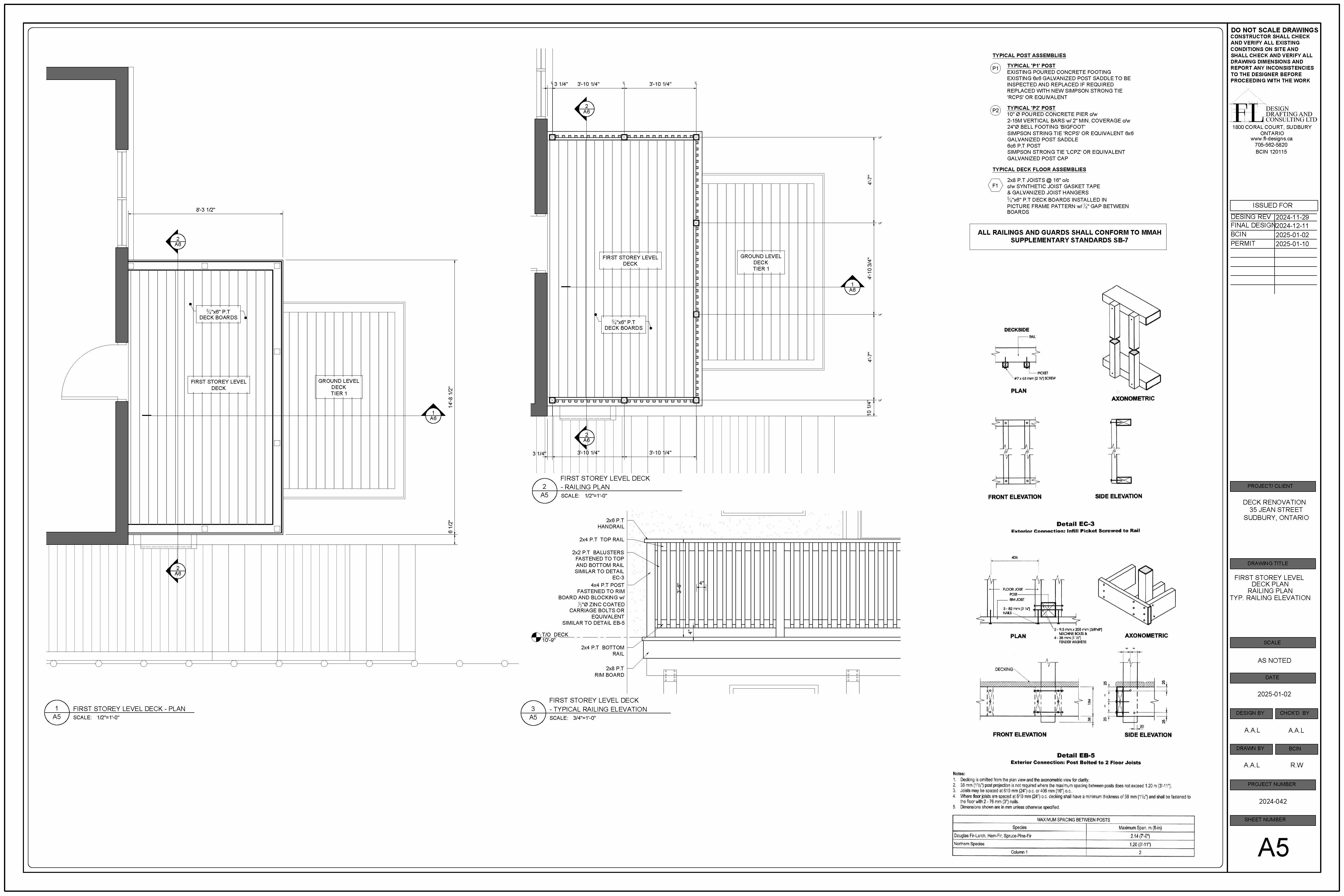
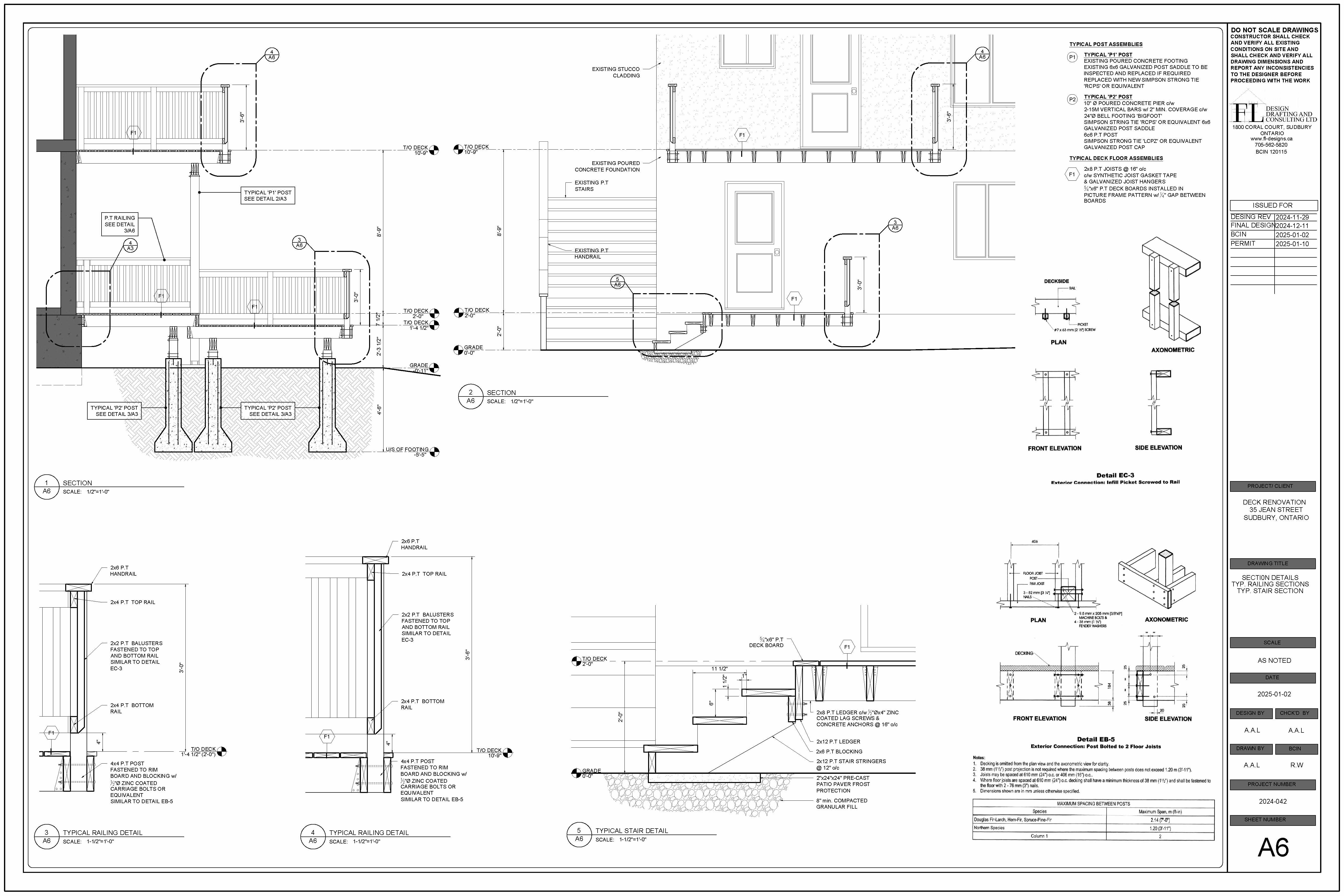
			DECK RENOVATION 2025
		
			DECK RENOVATION 2025
		
			SHOP DRAWINGS - CURTAIN WALL SYSTEMS
		
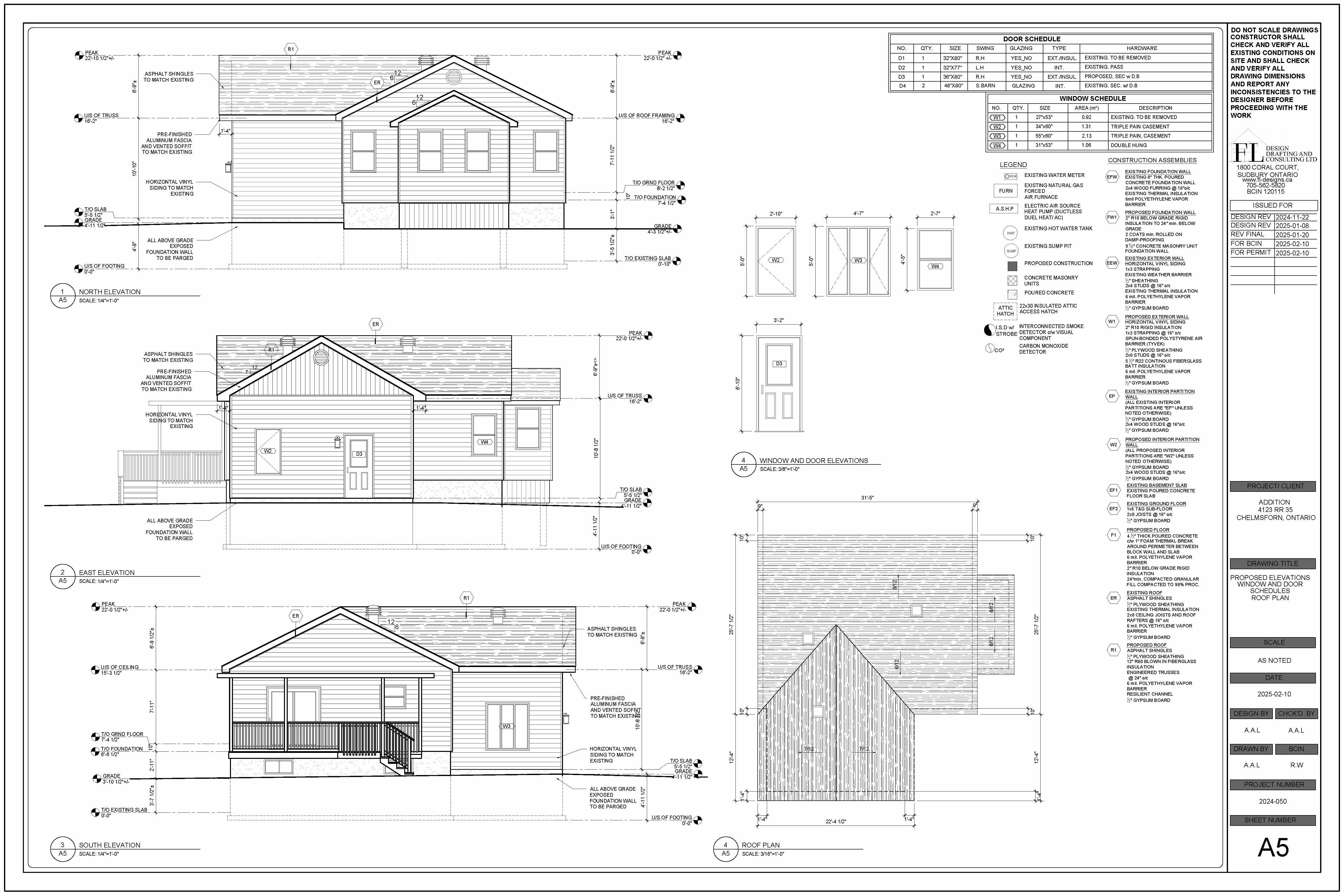
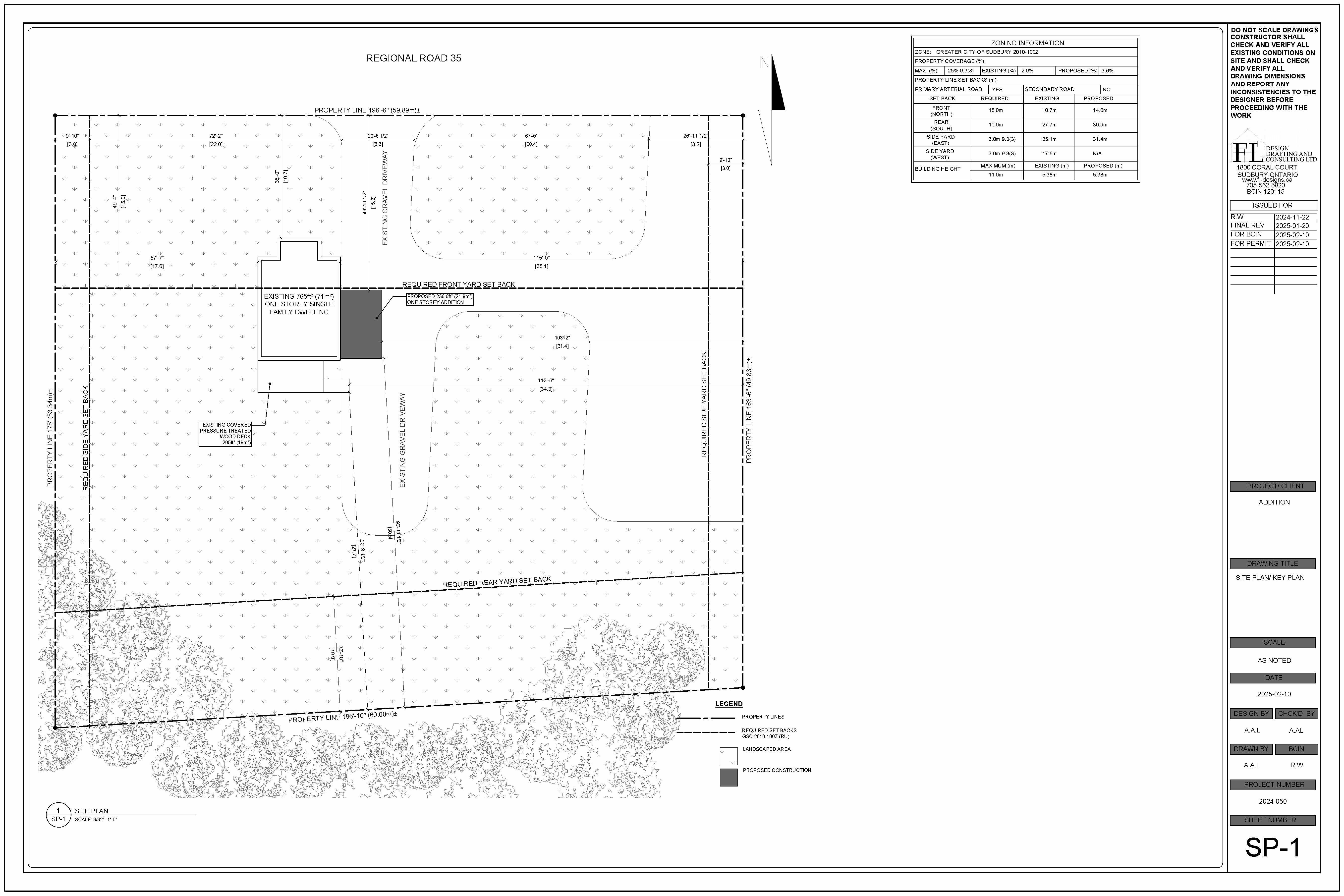
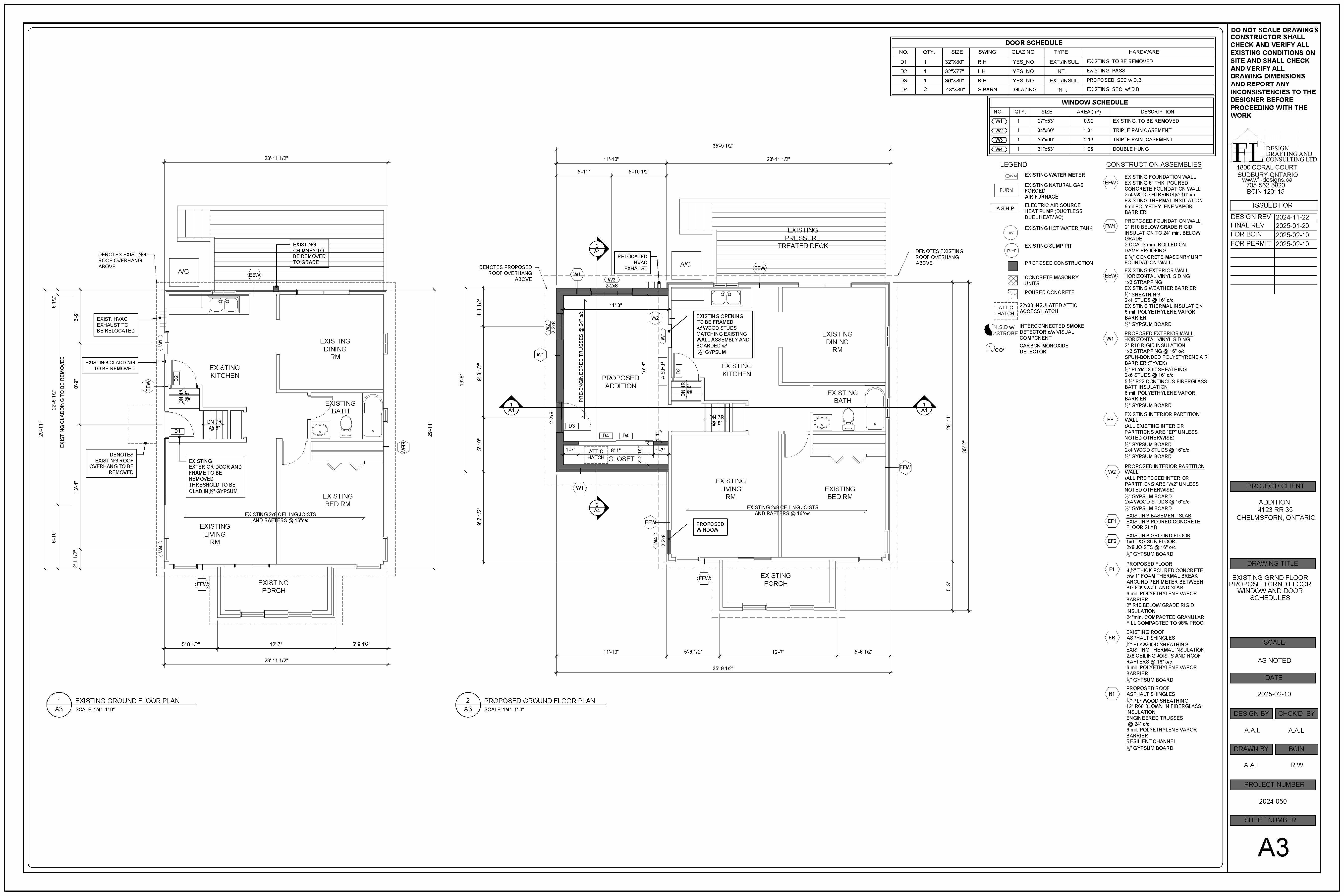
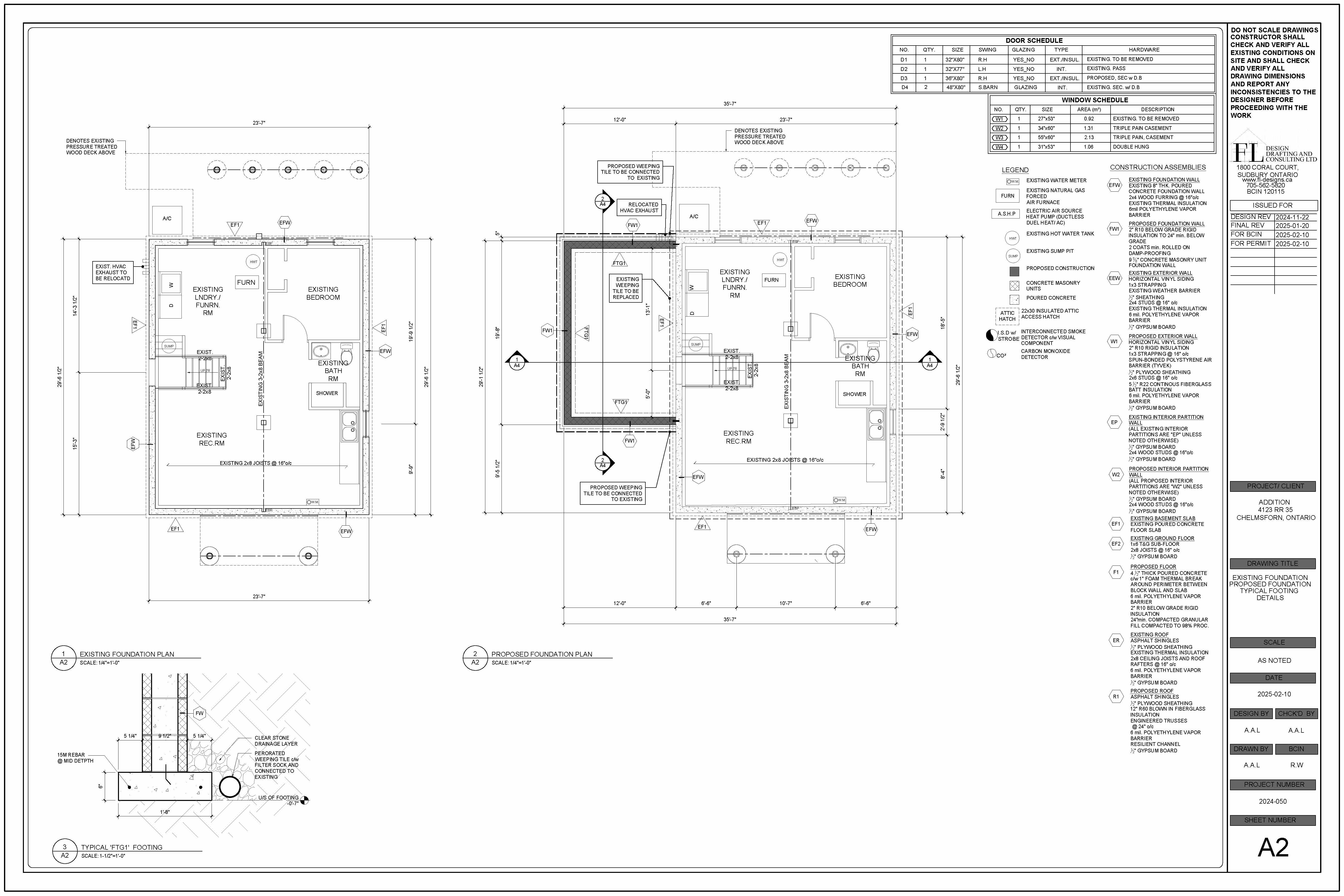
			ENTRANCE ADDITION - 2025
		
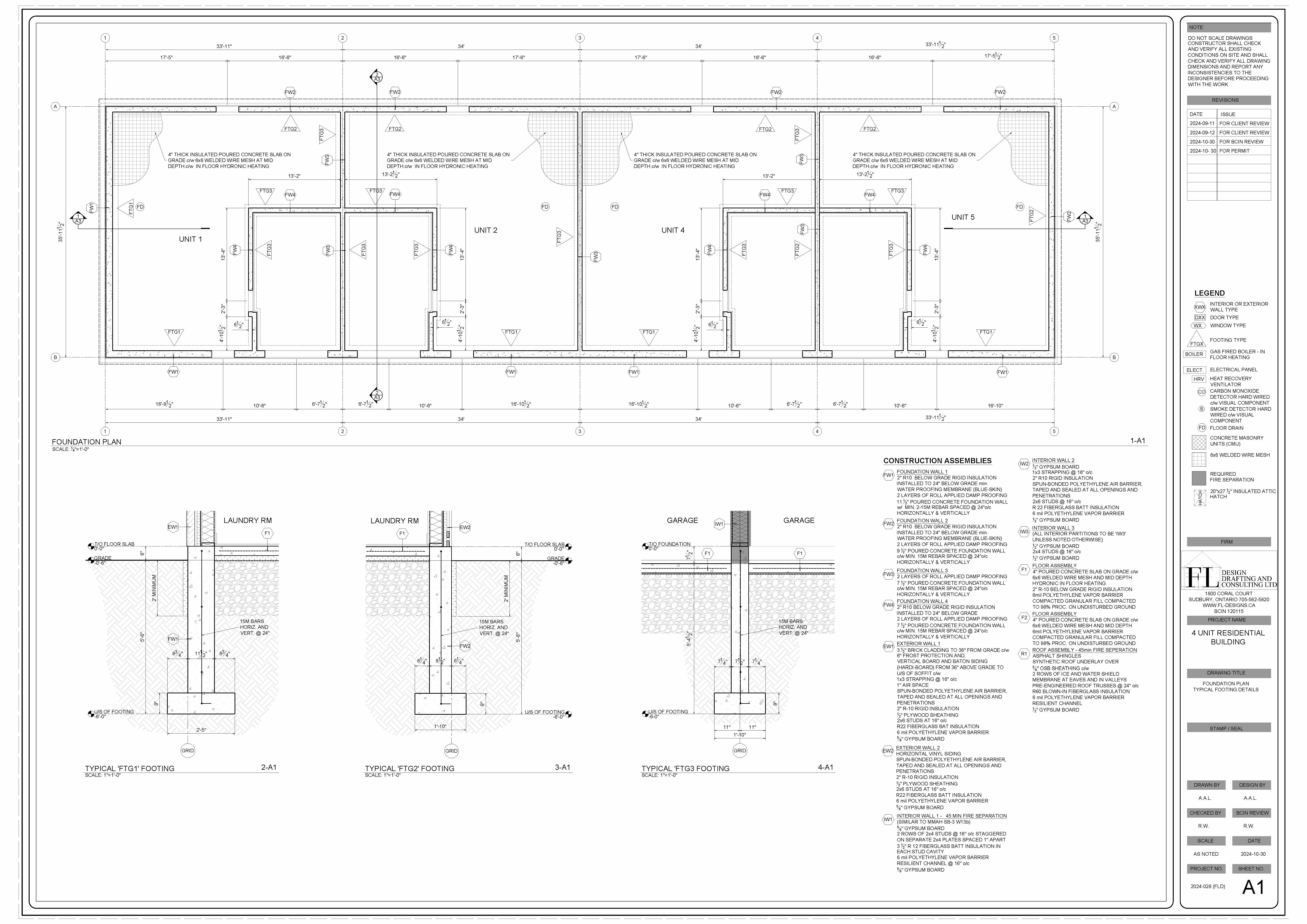
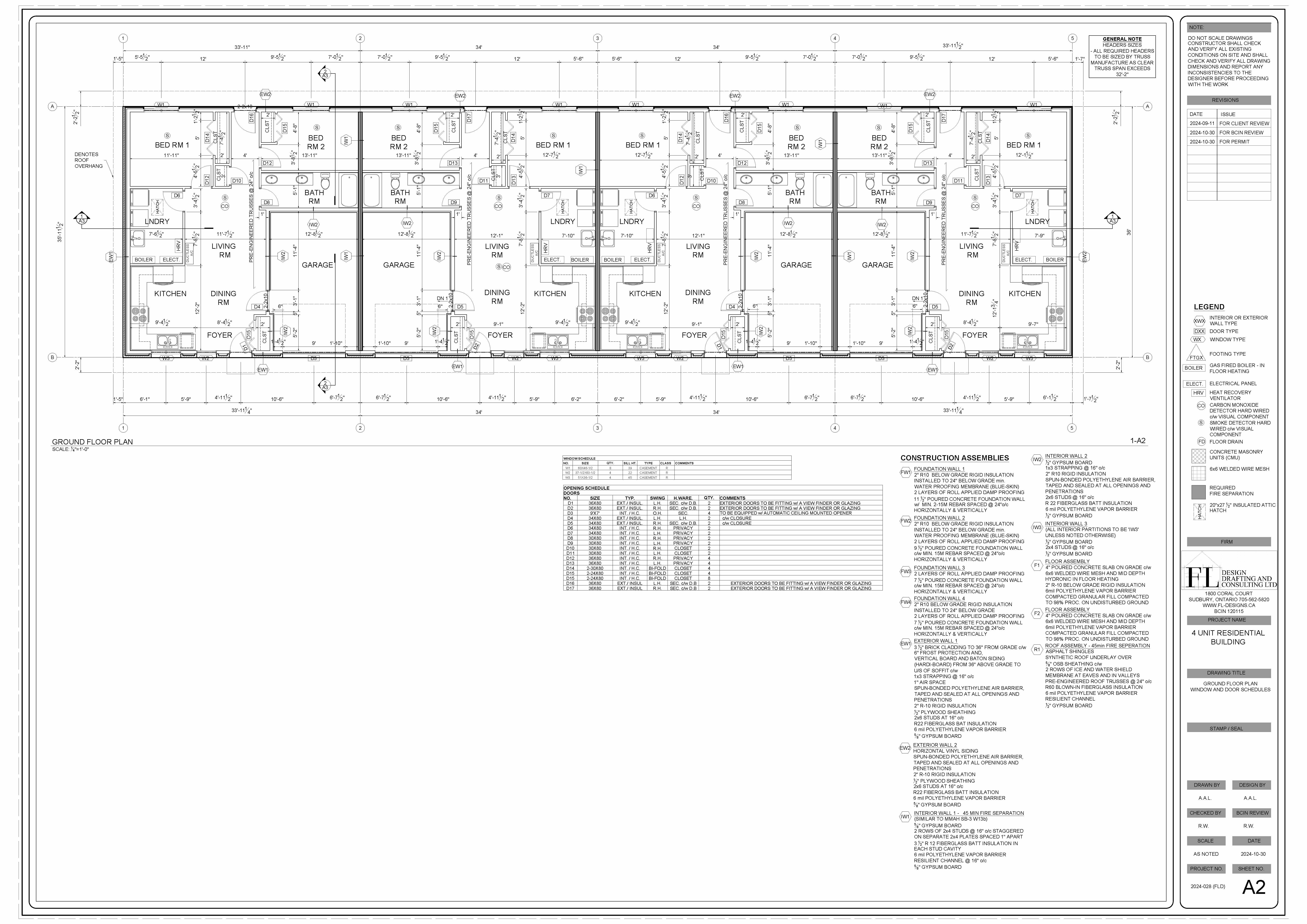
			MULTI FAMILY RESIDENTAIL - 2024
		
			To book an appointment please complete the fields below or reach out to us on Facebook, Instagram or linkedIn
		
			































